找回密码
 立即注册
搜索
查看: 58|回复: 0

[大家谈谈] 吧里能人多,自建房布置请指点一二

[复制链接]

3954

主题

2万

回帖

3万

积分

论坛元老

积分
35804
发表于 2026-1-8 15:24 | 显示全部楼层 |阅读模式
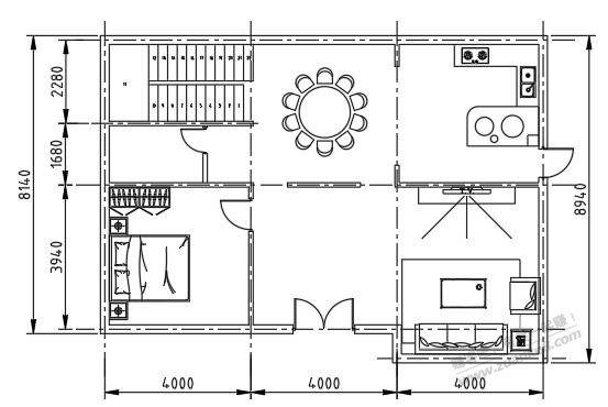
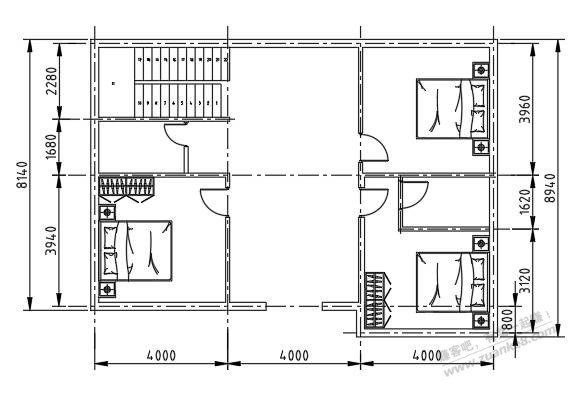
d1.jpg d2.jpg
画的头大,这个布局帮我看看,给点意见
客厅上有内卫行吗?
厨房顶上的房间做客卧行吗?
您需要登录后才可以回帖 登录 | 立即注册

本版积分规则

Archiver|手机版|小黑屋|赚客吧-线报活动免费交流 |网站地图

GMT+8, 2026-1-9 13:55 , Processed in 0.070449 second(s), 25 queries .

© 2001-2025 Discuz! Team.

快速回复 返回顶部 返回列表