找回密码
 立即注册
搜索
查看: 83|回复: 1

[大家谈谈] 准备回农村建房,帮看看这个户型怎么样

[复制链接]

3947

主题

2万

回帖

3万

积分

论坛元老

积分
35674
发表于 2026-1-10 17:58 | 显示全部楼层 |阅读模式
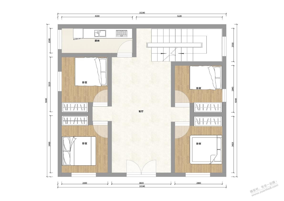
只能批到90㎡,地基大概就是10x9米。建一层平房,不盖瓦现浇楼板,需要四个卧室,卫生间目前安排在楼梯下面。自己做的户型,也不太懂,不知道实际用起来有没有什么问题。
d1.jpg

4007

主题

2万

回帖

3万

积分

论坛元老

积分
35858
发表于 2026-1-10 17:59 | 显示全部楼层
你这个户型无论从科学 还是玄学 都不行吧
您需要登录后才可以回帖 登录 | 立即注册

本版积分规则

Archiver|手机版|小黑屋|赚客吧-线报活动免费交流 |网站地图

GMT+8, 2026-1-11 08:49 , Processed in 0.074797 second(s), 23 queries .

© 2001-2025 Discuz! Team.

快速回复 返回顶部 返回列表